













Luksuz i elegancija na 100 m od plaže – stan S1 – Okrug Donji, Čiovo
Planikovica
Dodaj u omiljene
Kreditni kalkulator
Kreditni kalkulator
ID I33716
Detalji
Vrsta usluge
Prodaja
Vrsta nekretnine:
Stan
Površina
75,05 m2
Lokacija
Čiovo
Broj soba
2
Broj kupaonica
1
Godina izgradnje
2026.
Dokumentacija
Vlasnički list
Stanje
Novogradnja
330.000 €
Opis
Luksuz i elegancija na 100 m od plaže – stan S1 – Okrug Donji, Čiovo
Ovaj projekt moderne i suvremene arhitekture je mjesto gdje se plavetnilo mora susreće s vrhunskim dizajnom i mediteranskim načinom života. Samo 100 metara od kristalno čistog mora, nudi savršen spoj elegancije, udobnosti i privatnosti.
Okrug Donji nudi mir, more i autentičan mediteranski ugođaj, uz brzu i odličnu povezanost s Trogirom, Zračnom lukom Split i gradom Splitom – idealan izbor za one koji žele luksuz blizu mora, ali daleko od gužve. Poznat je po netaknutoj prirodi, čistom moru i šetnicama uz obalu, a zbog odlične povezanosti s Trogirom i Splitom postaje sve traženija lokacija za stanovanje i odmor.
U tek započetoj gradnji, svaki detalj je pažljivo osmišljen kako bi osigurao najvišu razinu kvalitete.
Kompleks čine luksuzni stanovi raspoređeni u 3 dvojne zgrade od kojih svaka zgrada ima svega po 6 stanova, te još jedna zgrada sa ukupno 3 stana, a dodatnu vrijednost donosi zajednički bazen – savršeno mjesto za opuštanje i druženje. Dio ovog kompleksa činiti će i 4 vile koje će dodatno zaokružiti ovaj projekt koji se prostire na ukupno 5.700m².
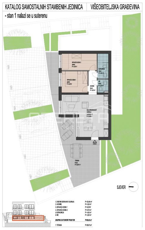
Stan S1 smješten je u prizemlju zgrade koja sadrži samo 3 stambene jedinice, prostire se kroz cijelu prizemnu etažu - stambene površine 55,55m², s pažljivo osmišljenim rasporedom: hodnik, WC, kupaonica, prostrani dnevni boravak i blagavaonica, kuhinja, 2 dvije spavaće sobe i terasa od 38,97 m² (koef. 0,50).
Uz stan je obavezna kupnja vanjskog parkirnog mjesta po cijeni od 10.000 €.
Ovaj projekt predstavlja sigurnu i vrijednu investiciju – bilo da tražite moderan dom u Dalmaciji ili nekretninu s izvrsnim potencijalom za turistički najam.
Značajke
Terasa
Parkirno mjesto
Grijanje
Klima uređaj
Karakteristike
Pogled na more
Lokacija
Kalkulator kredita

Danijela Haide